Home


TQWTスピーカーの製作

オーディオ仲間のトッチーさんから、面白いスピーカーを作ったよと。
小型で場所も取らず、お金も掛からないので製作することにしました。(製作年は不明・2022年2月23日処分)


  
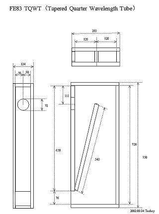
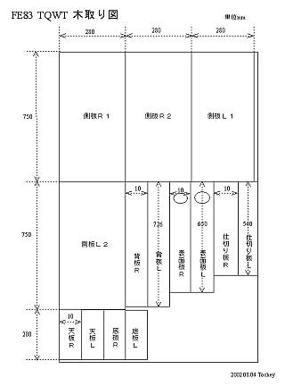
図面をクリックすると拡大します。
(この図は、トッチー氏が書かれたもので掲載については許可を得ています)


スピーカーはフォステクスのFE83Eを使用し、スーパーフラミンゴで合板
カットをお願いした木工室にカットを依頼しました。※シナ合板は12mm


  
これがフォステクスのFE83Eです。

  
スピーカーターミナルには、コイズミ無線のT-150Sを使用。

進む